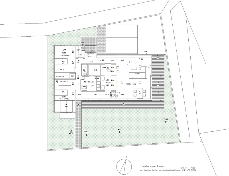
名  称 :糸島の家(景色を取込む漆喰の家)  
竣  工 :2019年11月20日
建設会社 :棟生工務店
場  所 :福岡県糸島市波多江
構  造 :木造1階建て
床面積  :93.30m2